| Renovation of an Existing Office Building into Residential Apartments, OMONIA ATHENS |
| Type | Residential Building |
| Size | 1300 m2 |
| Status | Completed |
| Client | BLEND DEVELOPMENT | Year | 2025 |
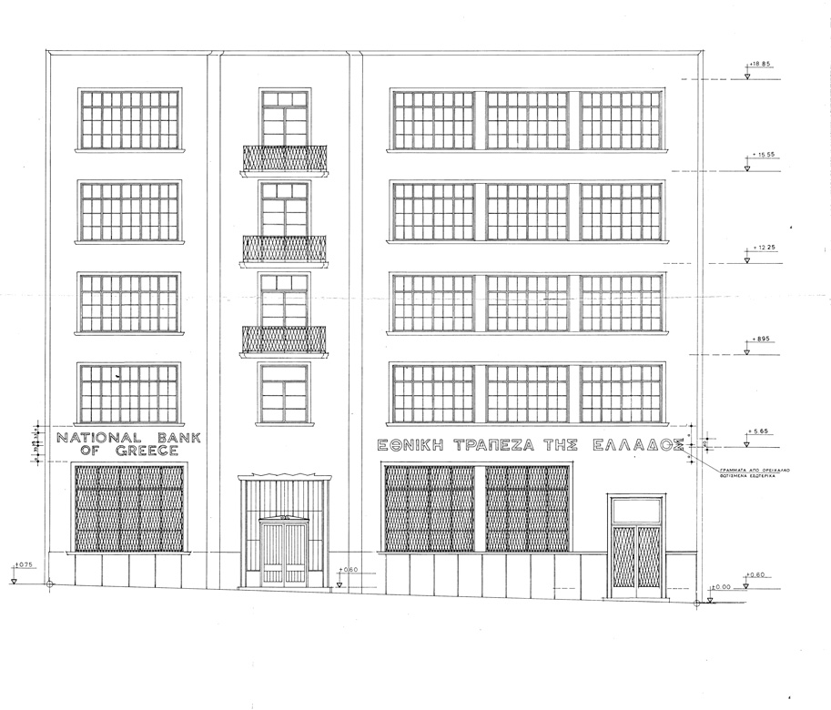
Located in Omonia, in the center of Athens, the project involves the complete renovation and adaptive reuse of a four-storey building from the 1950s, formerly owned by the National Bank of Greece, transforming it into contemporary furnished apartments. The new program was integrated with respect to the building’s original character. The façades were preserved, maintaining the architectural identity of the period, while the interior spaces were entirely redesigned to meet modern living standards. An integrated lighting study was developed as part of the project, enhancing functionality and atmosphere while highlighting the building’s architectural elements. Sustainability was a key design principle, with the building currently in the process of obtaining LEED certification, aiming to improve energy performance and reduce its environmental footprint.